Vivienda MARINA

MARINA es uno de nuestros modelos con doble planta. Con un elegante diseño minimalista, destaca por sus líneas puras y la calidez de su revestimiento. Tenemos 1 modelo disponible de 170 m2.

170 m2

4 dormitorios

3 baños

304.593,75€ IVA incl

El precio incluye

  • IVA del proyecto y de la vivienda.
  • Cimentación estándar.
  • Instalación.
  • Proyecto completo de la vivienda: arquitecto, arquitecto técnico, dirección de obra y coordinación de seguridad y salud.
  • Cocina: mobiliario e isla (personalizable), campana, vitrocerámica, fregadero y calentador de 100 litros.
  • Baños: mobiliario y sanitarios.
  • Climatización: por conductos.

No se incluye en el precio: transporte, los exteriores, piscina, armarios de los dormitorios, mobiliario general, decoración, estudio geotécnico y topográfico, conexión a la red pública de saneamiento, conexión a la acometida de luz y agua y licencia de obra.

1 de 3

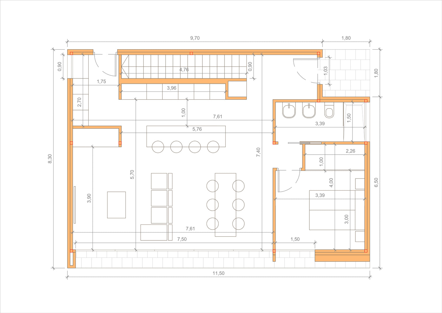
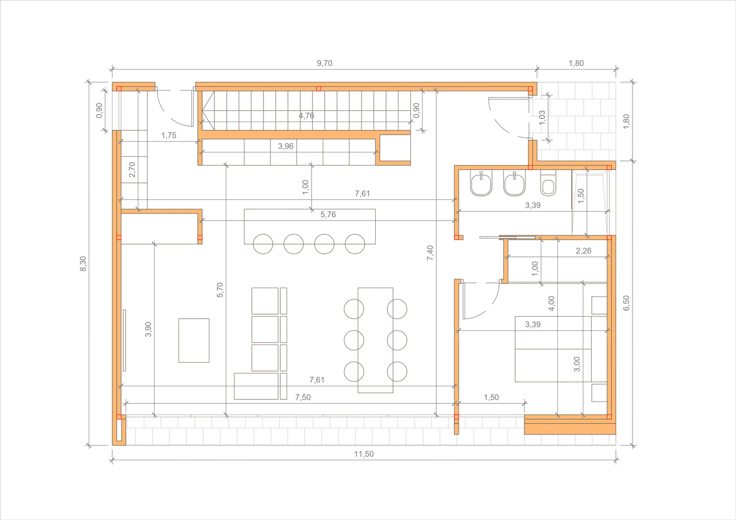
PLANTA BAJA

En la planta baja se sitúa la zona de día con tres ambientes diferenciados pero conectados entre sí: salón, comedor y cocina. un baño y un dormitorio.

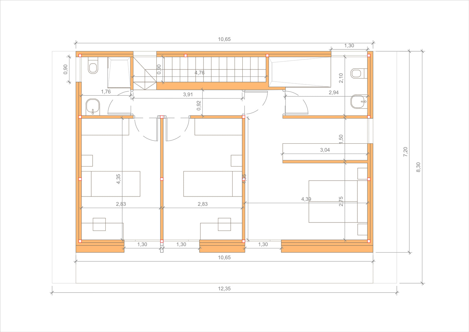
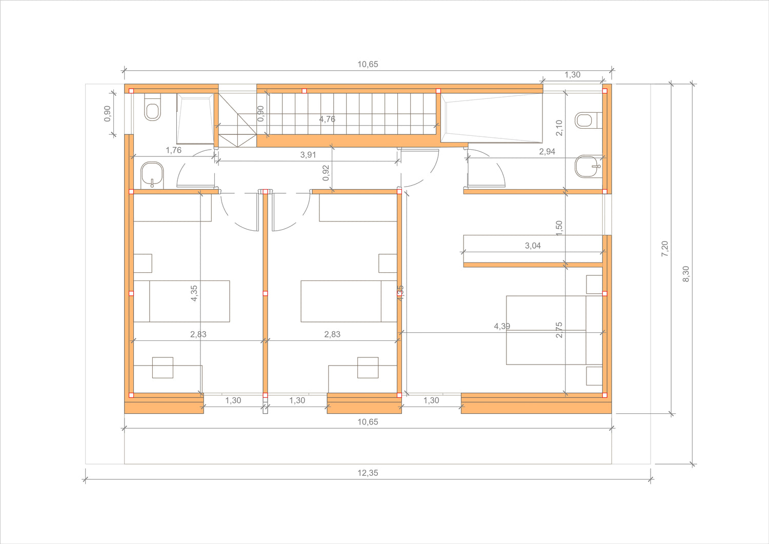
PLANTA PRIMERA

En la planta superior se ubican los dormitorios, un baño completo y una terraza transitable, a las cual se tiene acceso desde todos los dormitorios de la pri- mera planta.