Vivienda LANZAROTE

LANZAROTE es una variante del modelo Formentera con una ampliación en la zona de salón/comedor/cocina. Es el modelo ideal para aquellos que buscan una vivienda en la que disfrutar con sus amigos y familiares, gracias a la amplitud de sus espacios.

Tenemos 4 modelos disponibles: 103 m2, 107 m2, 132 m2 y 167 m2.

El precio incluye:

  • IVA del proyecto y de la vivienda.
  • Cimentación estándar.
  • Instalación.
  • Proyecto completo de la vivienda: arquitecto, arquitecto técnico, dirección de obra y coordinación de seguridad y salud.
  • Porche.
  • Cocina: mobiliario e isla (personalizable), campana, vitrocerámica, fregadero y calentador de 100 litros.
  • Baños: mobiliario y sanitarios.
  • Climatización: por conductos.

No se incluye en el precio: transporte, los exteriores, piscina, armarios de los dormitorios, mobiliario general, estudio geotécnico y topográfico, conexión a la red pública de saneamiento, conexión a la acometida de luz y agua y licencia de obra.

1 de 3

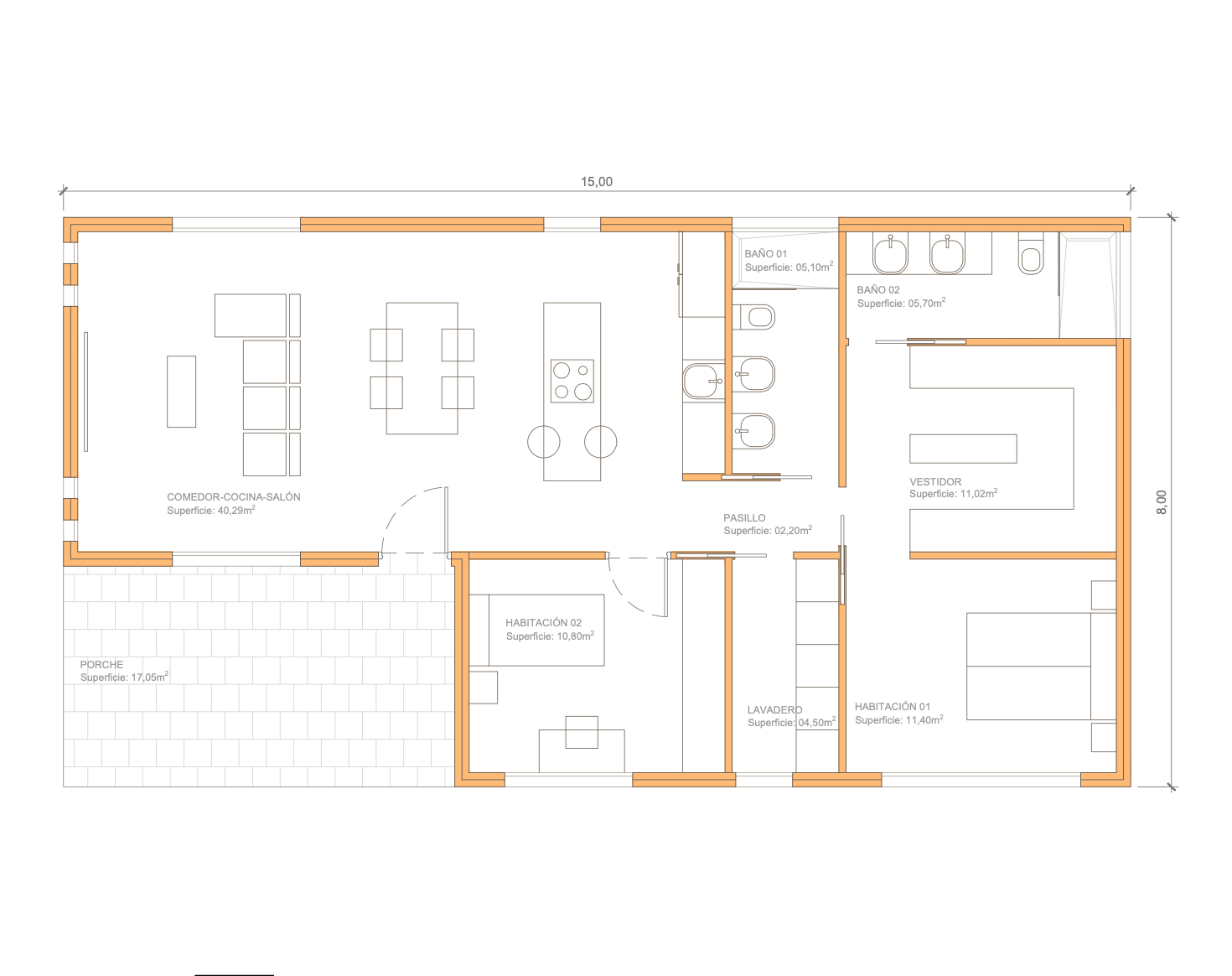
103 m2

2 habitaciones

2 baños

181.395,76€ IVA incl.

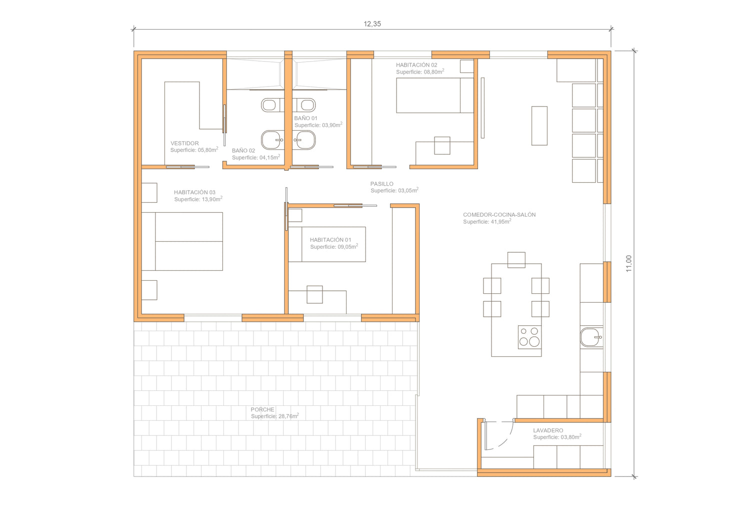
107 m2

3 dormitorios

2 baños

199.285,30€ IVA incl.

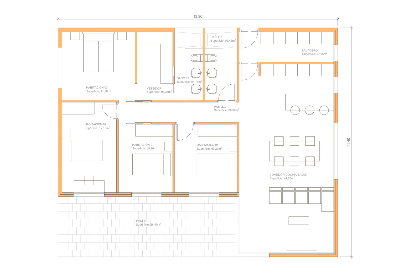
132 m2

4 habitaciones

2 baños

229.594,01€ IVA incl.

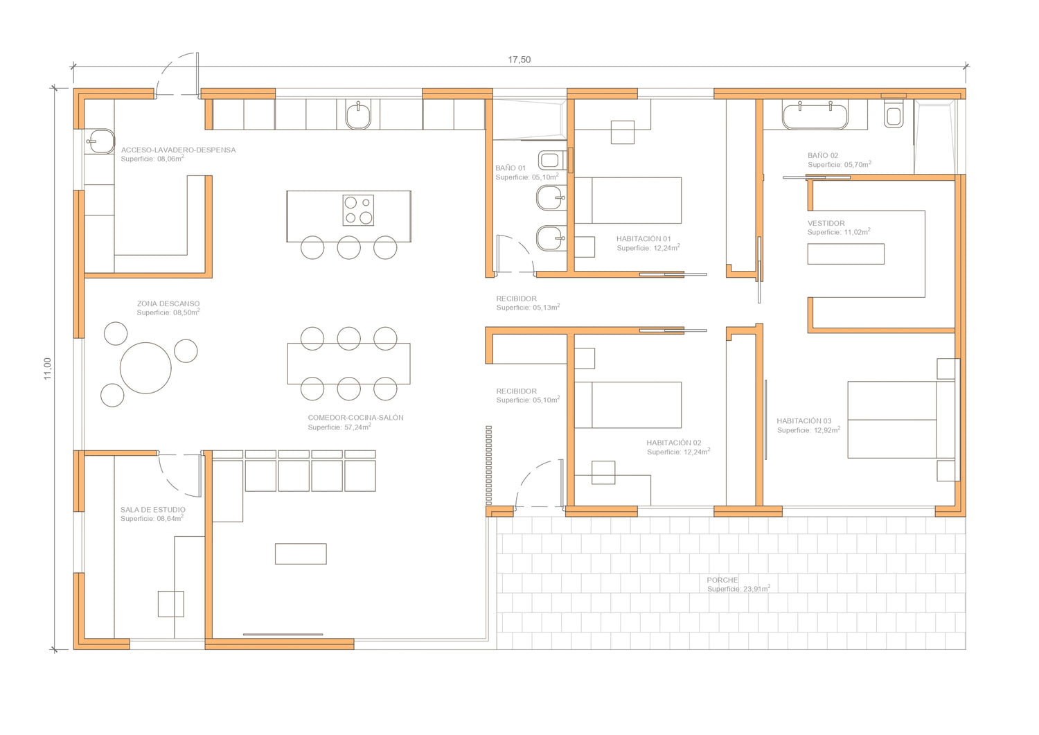
167 m2

3 habitaciones

2 baños

283.417,29 € IVA incl.