1 de 4

Vivienda FORMENTERA

La vivienda FORMENTERA es nuestro modelo más demandado gracias a su relación calidad precio, distribución funcional y a su optimización del espacio. Tenemos 3 modelos a elegir: 84 m2, 98 m2 y 124 m2.

Interior Vivienda FORMENTERA

El precio incluye

  • IVA del proyecto y de la vivienda.
  • Cimentación estándar.
  • Instalación.
  • Proyecto completo de la vivienda: arquitecto, arquitecto técnico, dirección de obra y coordinación de seguridad y salud.
  • Porche.
  • Cocina: mobiliario e isla (personalizable), campana, vitrocerámica, fregadero y calentador de 100 litros.
  • Baños: mobiliario y sanitarios.
  • Climatización: por split.

No se incluye en el precio: transporte, los exteriores, piscina, armarios de los dormitorios, mobiliario general, estudio geotécnico y topográfico, conexión a la red pública de saneamiento, conexión a la acometida de luz y agua y licencia de obra.

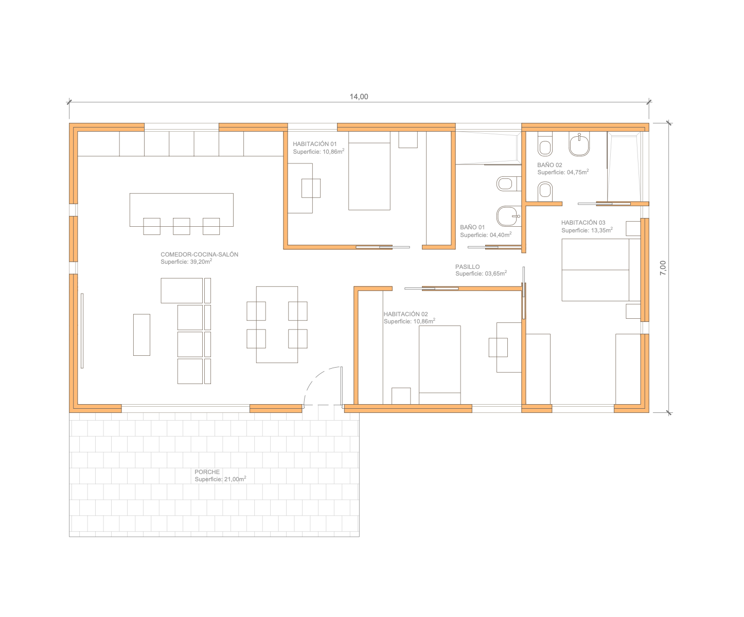
84 m2

3 dormitorios

2 baños

175.413,92€ IVA incl.

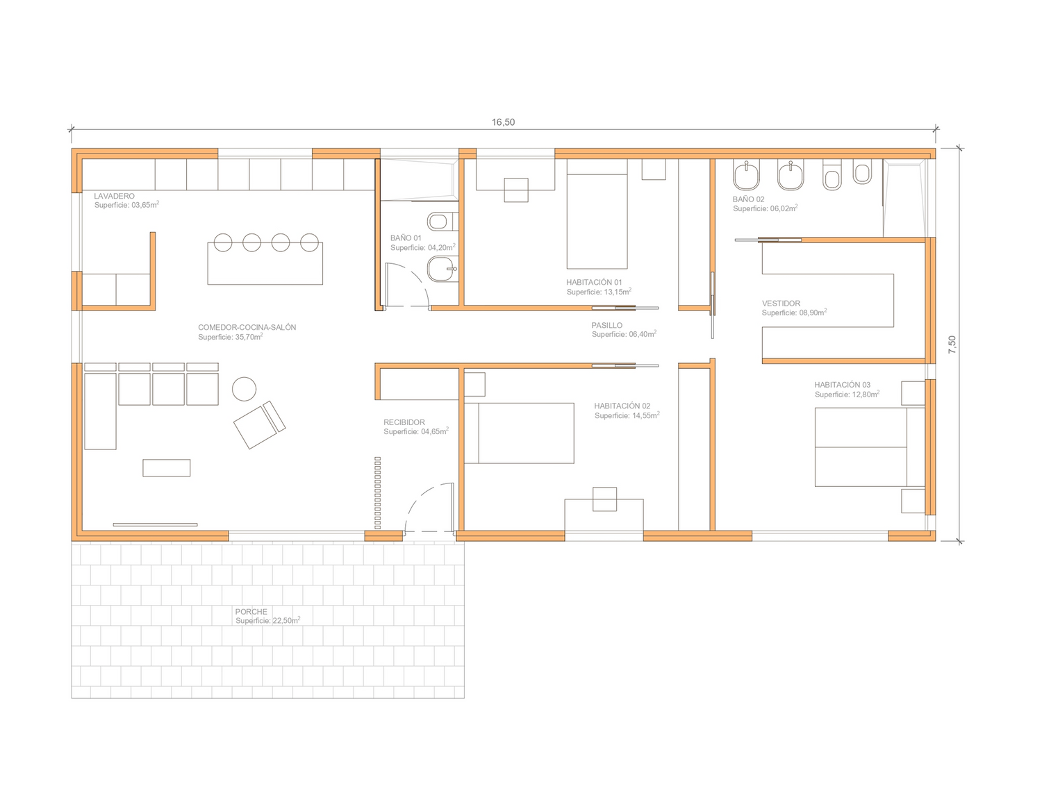
98 m2

3 dormitorios

2 baños

194.720,26€ IVA incl.

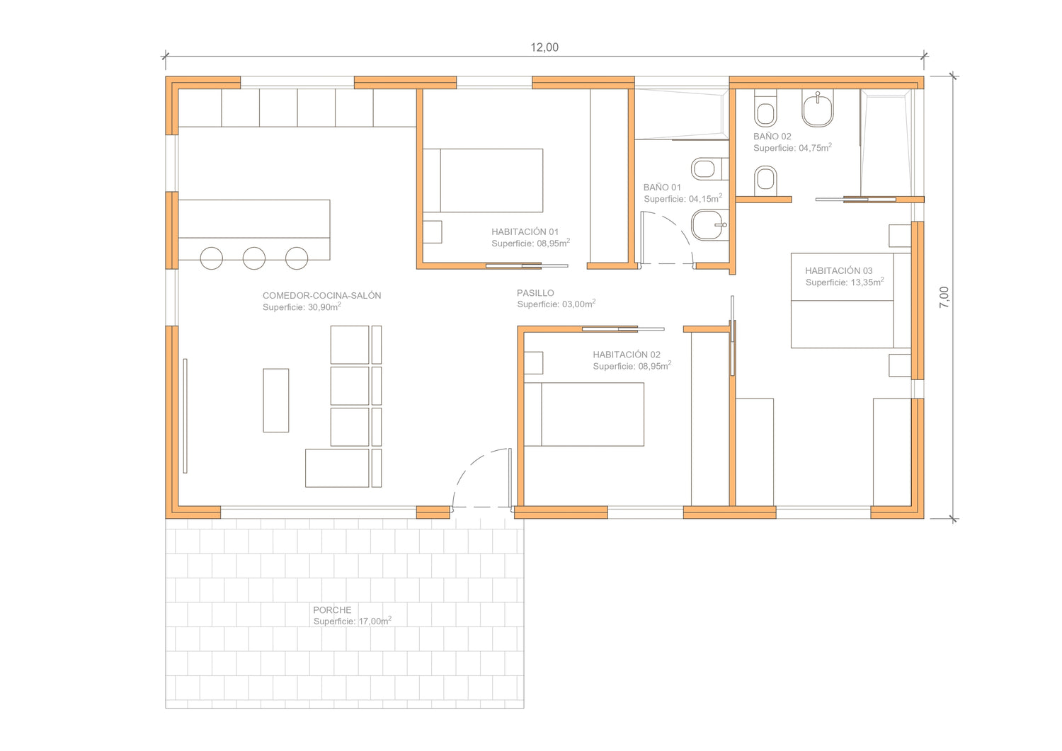
124 m2

3 dormitorios

2 baños

230.757,04€ IVA incl.