Vivienda DENIA

DENIA es el modelo más exuberante de nuestro catálogo. Dos grandes módulos cruzados conforman la volumetría de esta vivienda, la cuál la hace perfecta para aquellos que quieran disfrutar de las vistas. Tenemos 1 modelo disponible de 230 m2.

230 m2

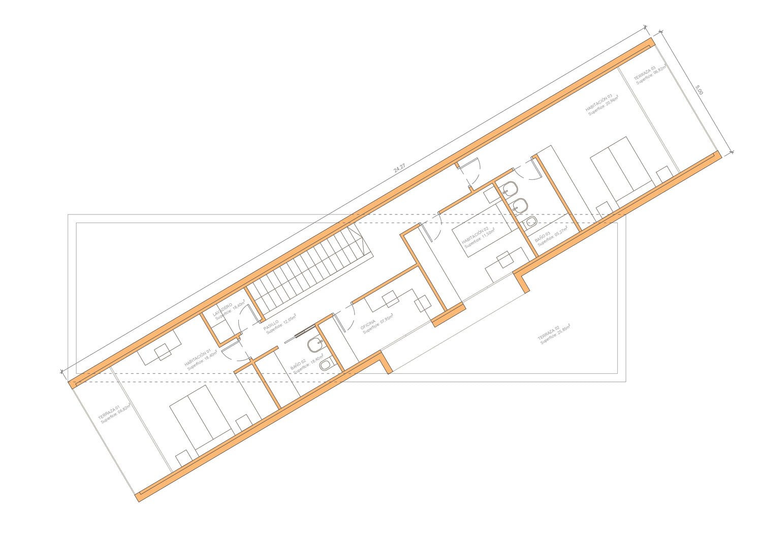
3 dormitorios

3 baños

439.769,40€ IVA incl.

El precio incluye

  • IVA del proyecto y de la vivienda.
  • Cimentación estándar.
  • Instalación.
  • Proyecto completo de la vivienda: arquitecto, arquitecto técnico, dirección de obra y coordinación de seguridad y salud.
  • Porche.
  • Cocina: mobiliario e isla (personalizable), campana, vitrocerámica, fregadero y calentador de 100 litros.
  • Baños: mobiliario y sanitarios.
  • Climatización: por conductos.

No se incluye en el precio: transporte, los exteriores, piscina, armarios de los dormitorios, mobiliario general, decoración, estudio geotécnico y topográfico, conexión a la red pública de saneamiento, conexión a la acometida de luz y agua y licencia de obra.

1 de 5

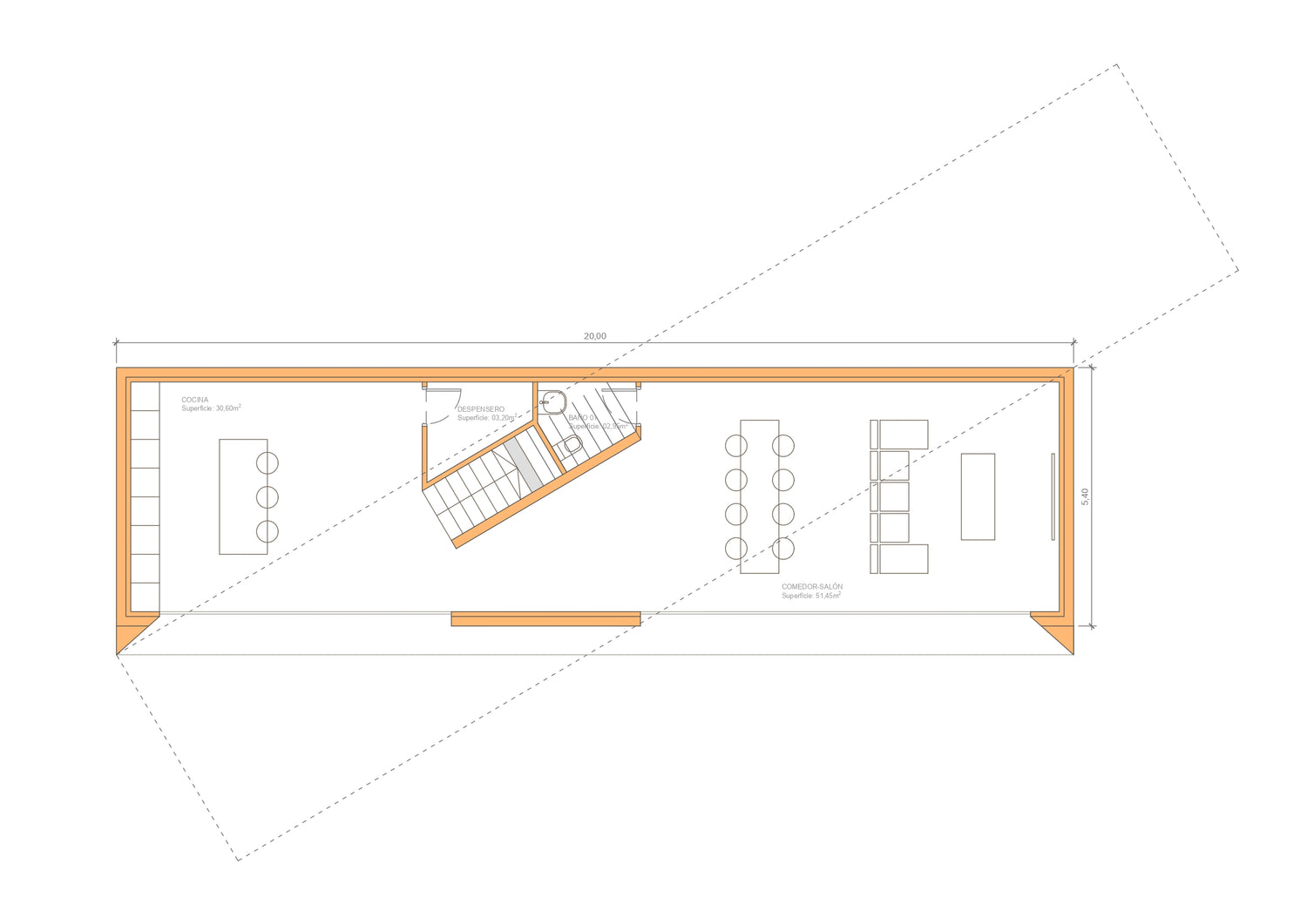
PLANTA BAJA

En la planta baja se sitúa la zona de día con tres ambientes diferenciados pero conectados entre sí: salón, comedor y cocina.

PLANTA PRIMERA

En la planta superior se ubican los dormitorios, todos orientados a las mejores vistas de la parcela, dos bañoscompletos, una oficina y tres terrazas transitables, a las cuales, se tienen acceso desde todas las habitaciones de la primera planta.