1 de 4

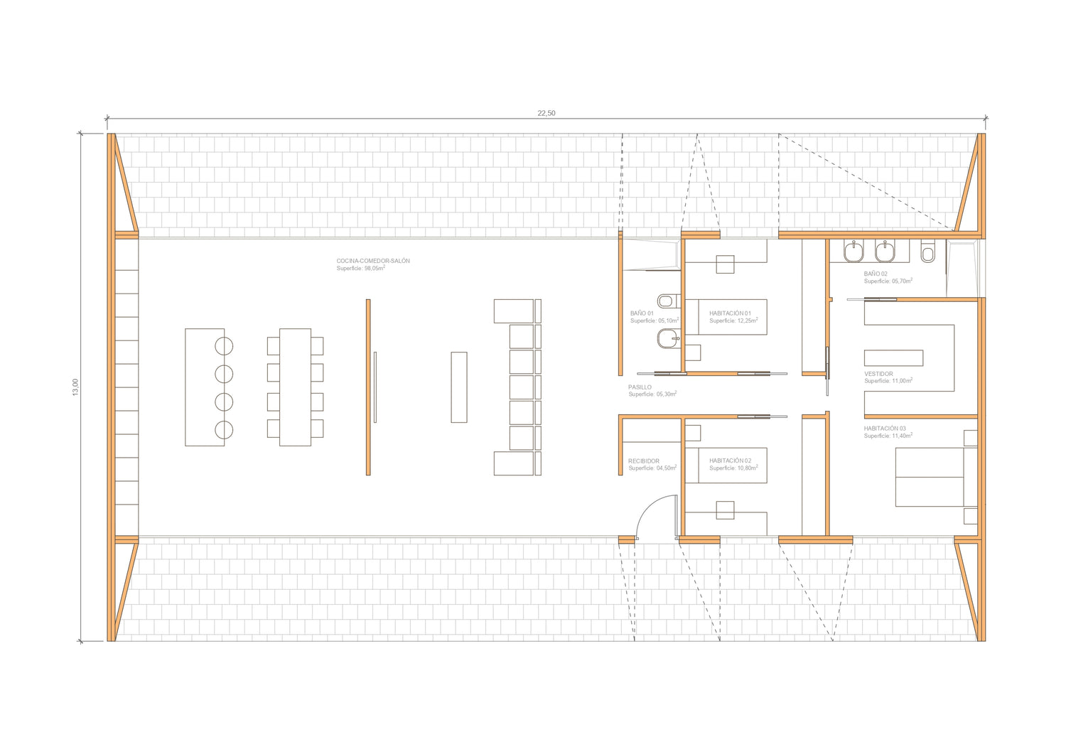
Vivienda BIANCA

BIANCA es el modelo más minimalista de nuestro catálogo. Este modelo destaca gracias su elegante diseño y sus dos grandes paños acristalados que bañan de luz natural todas las estancias diurnas. Tenemos 1 modelo disponible de 180 m2.

180 m2

3 habitaciones

2 baños

398.479,21€ IVA incl.

El precio incluye

  • IVA del proyecto y de la vivienda.
  • Cimentación estándar.
  • Instalación.
  • Proyecto completo de la vivienda: arquitecto, arquitecto técnico, dirección de obra y coordinación de seguridad y salud.
  • Porches.
  • Cocina: mobiliario e isla (personalizable), campana, vitrocerámica, fregadero y calentador de 100 litros.
  • Baños: mobiliario y sanitarios.
  • Climatización: por conductos.

No se incluye en el precio: transporte, los exteriores, armarios de los dormitorios, mobiliario general, decoración, estudio geotécnico y topográfico, conexión a la red pública de saneamiento, conexión a la acometida de luz y agua y licencia de obra.