Vivienda BALI

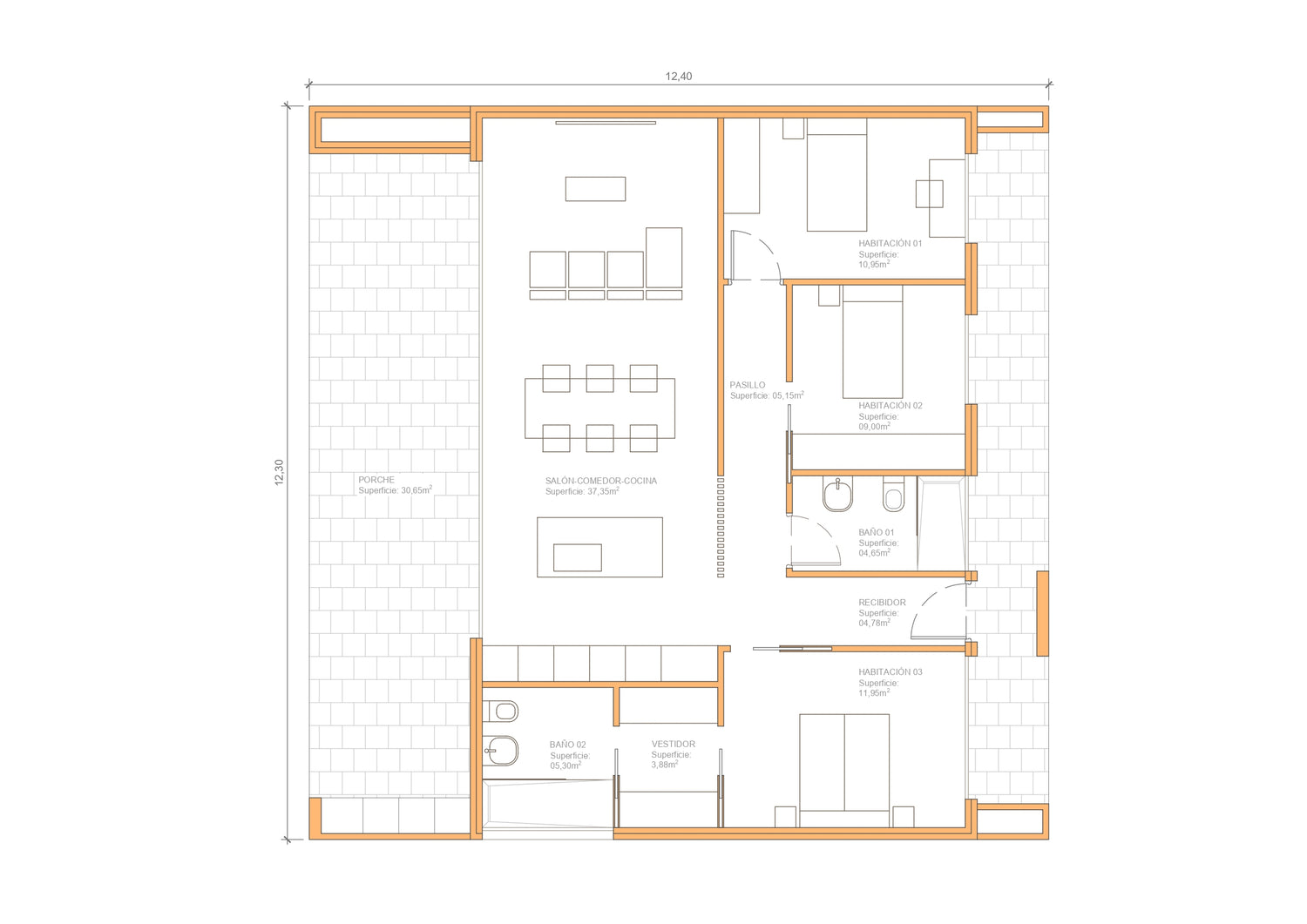
BALI es el modelo más novedoso de nuestro catálogo. Con un elegante diseño que fusiona el estilo minimalista con el lujo del sudeste asiático. Este modelo destaca gracias al contraste entre sus lineas puras y los materiales naturales. Tenemos 1 modelo disponible de 105 m2.

1 de 5

El precio incluye

  • IVA del proyecto y de la vivienda.
  • Cimentación estándar.
  • Instalación.
  • Proyecto completo de la vivienda: arquitecto, arquitecto técnico, dirección de obra y coordinación de seguridad y salud.
  • Porche.
  • Exteriores, a excepción de los muros exteriores.
  • Piscina
  • Barbacoa
  • Cocina: mobiliario e isla (personalizable), campana, vitrocerámica, fregadero y calentador de 100 litros.
  • Baños: mobiliario y sanitarios.
  • Climatización: por conductos.

No se incluye en el precio: muros exteriores, mobiliario, transporte, estudio geotécnico y topográfico, conexión a la red pública de saneamiento, conexión a la acometida de luz y agua y licencia de obra.

105 m2

3 habitaciones

2 baños

260.036,47€ IVA incl.