1 de 5

Vivienda ELEGANCE

Elegance, una obra maestra de diseño y funcionalidad que redefine el concepto de hogar modular. Este modelo está disponible en dos tamaños: 123m² y 150m², ambos diseñados para ofrecer la máxima comodidad y elegancia.

Nuestro modelo Elegance, se distingue por su funcionalidad en cada detalle. Su concepto abierto, nos ofrece un espacio de cocina-salón-comedor donde la luz natural y la amplitud se combinan para crear un ambiente acogedor y moderno. Perfecto para disfrutar en familia o con amigos, este espacio es el corazón del hogar. Ambos tamaños incluyen un lavadero independiente, proporcionando la máxima comodidad y practicidad en la gestión del hogar. Además, cuenta con 3 dormitorios cuidadosamente diseñados para ofrecer un descanso reparador. El dormitorio principal dispone de un baño en suite, proporcionando un espacio privado y exclusivo. Además, un segundo baño completo asegura la comodidad de toda la familia y los invitados.

La vida en Elegance se extiende al exterior con una piscina que invita al relax y la diversión, con una elegante pasarela encima de la piscina, la cual añade un toque de sofisticación y funcionalidad. La barbacoa con porche integrado se convierte en el lugar ideal para disfrutar de comidas al aire libre durante todo el año y completando esta oferta, un garaje, asegurando el resguardo y la seguridad de tus vehículos.

El precio incluye

  • IVA del proyecto y de la vivienda.
  • Cimentación estándar.
  • Instalación.
  • Proyecto completo de la vivienda: arquitecto, arquitecto técnico, dirección de obra y coordinación de seguridad y salud.
  • Porche.
  • Cocina: mobiliario e isla (personalizable), campana, vitrocerámica, fregadero y calentador de 100 litros.
  • Baños: mobiliario y sanitarios.
  • Climatización: por conductos. aerotermia acs.
  • Ventilación con recuperación de calor.

No se incluye en el precio: transporte, los exteriores, piscina, armarios de los dormitorios, mobiliario general, estudio geotécnico y topográfico, conexión a la red pública de saneamiento, conexión a la acometida de luz y agua y licencia de obra.

Interior Vivienda ELEGANCE

1 de 5
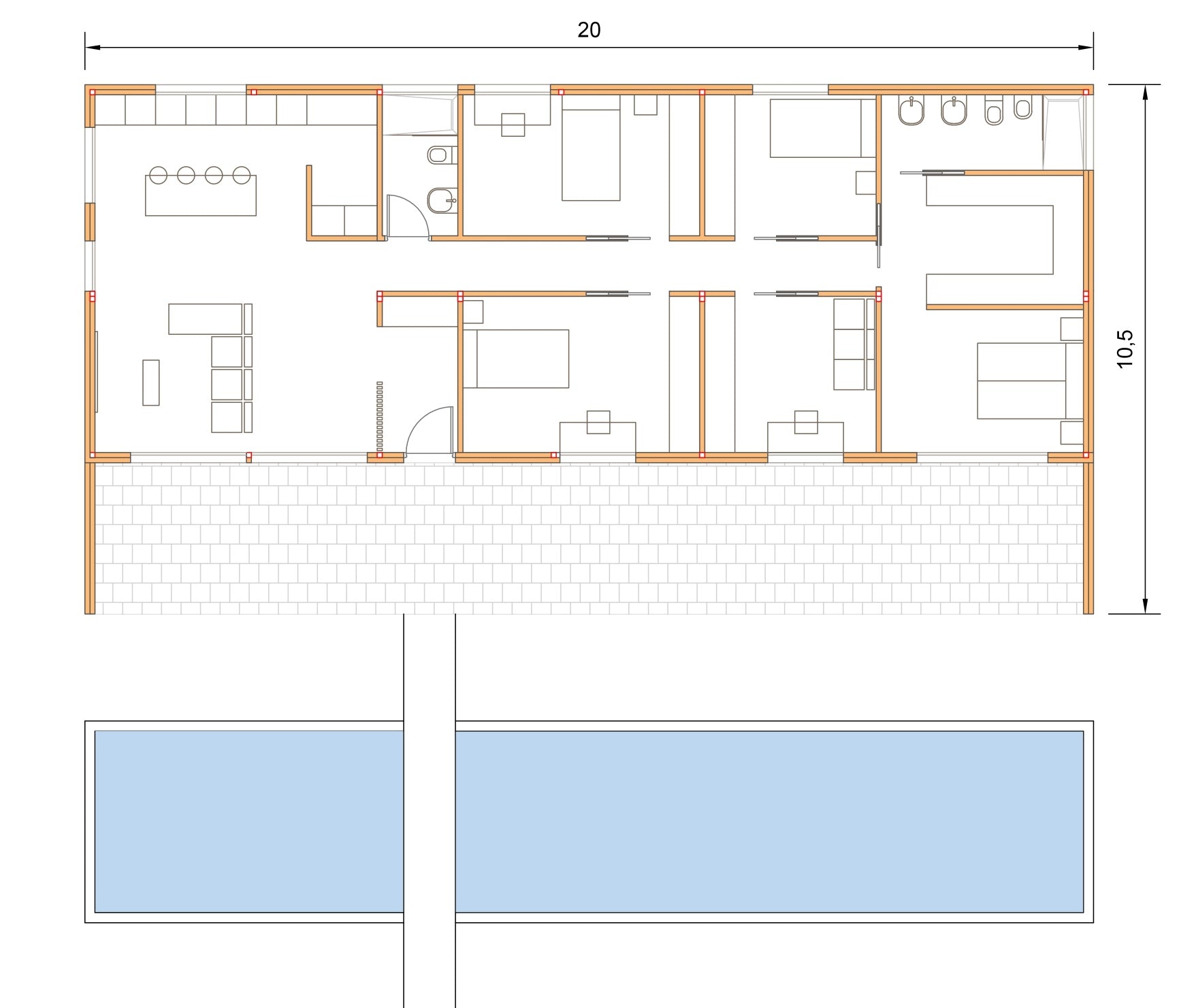
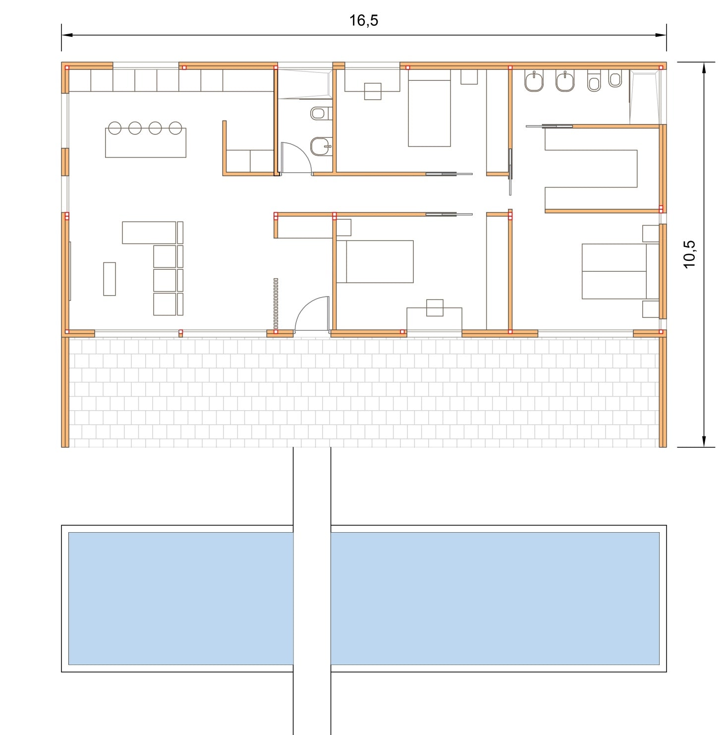
  • 123 m2 o 150 m2.
  • 3 dormitorios.
  • 2 baños.
  • Lavadero.
  • Barbacoa.
  • Garaje.
  • Piscina.
  • ELEGANCE 123m2

    OPCIÓN 1
    - Vivienda 123m2.
    - Porche incluido de 50m2 con pavimento y porcelánico incluido.

  • ELEGANCE 150m2

    OPCIÓN 1

    - Vivienda 150m2.
    - Porche incluido de 60m2 con pavimento y porcelánico incluido.

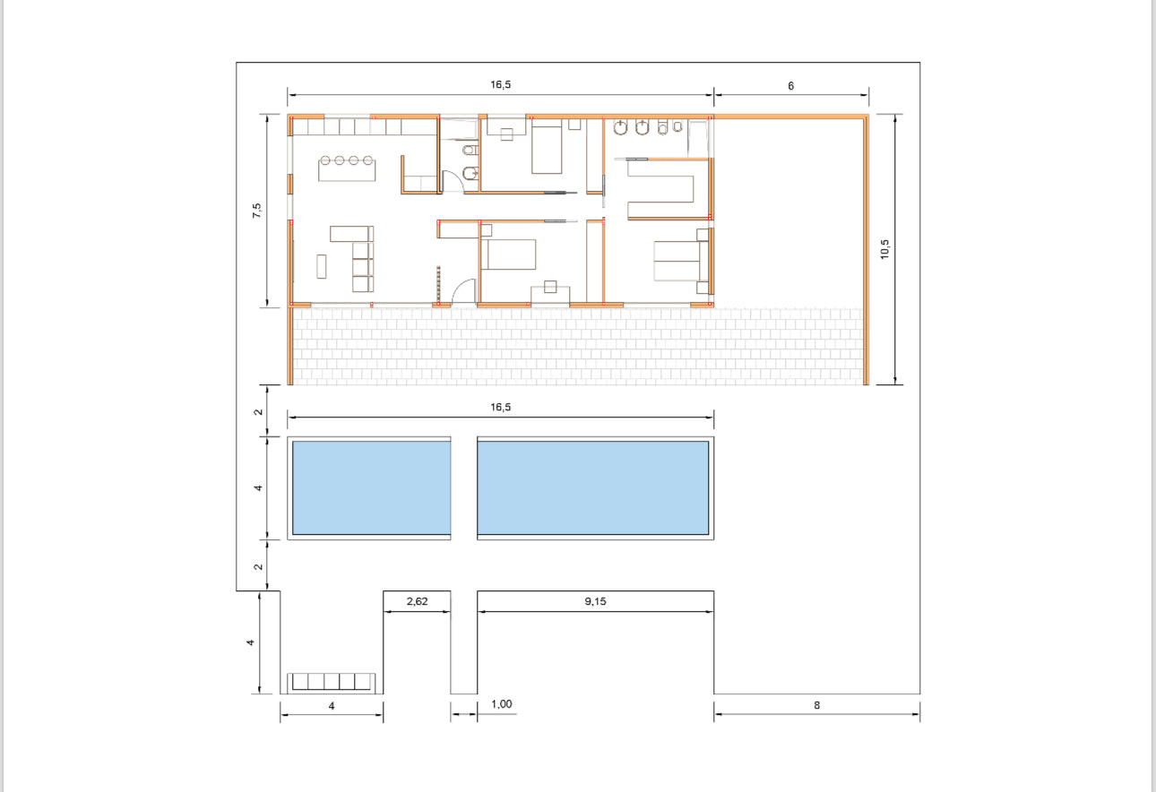
  • ELEGANCE 123m2

    ⁠OPCIÓN 2. Completa tu construcción.

    - Vivienda 123m2.
    - Porche incluido de 67,5m2 con pavimento y porcelánico incluido.
    - Garaje 45m2.
    - Barbacoa con porche integrado a la vivienda 12m x 48m2
    - Piscina 13m x 3m o 16,5m x 3m
    - Pasarela sobrepasando la piscina
    - Pavimento: acera perimetral.
    - Pavimento exterior zona de piscina y pasillo garaje 187m2

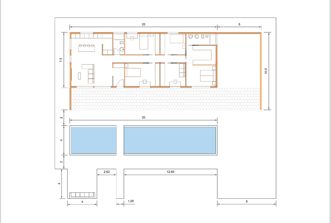
  • ELEGANCE 150m2

    OPCIÓN 2. Completa tu construcción.
    - Vivienda 150m2.
    - Porche incluido de 78m2 con pavimento y porcelánico incluido.
    - Garaje 45m2.
    - Barbacoa con porche integrado a la vivienda 48m2.
    - Piscina 13m x 3m o 20m x 3m.
    - Pasarela sobrepasando la piscina.
    - Pavimento: acera perimetral.
    - Pavimento exterior zona de piscina y pasillo garaje 197,5m2

¿Deseas saber más sobre nuestro modelo ELEGANCE?

Cada rincón del modelo ELEGANCE está diseñado para ofrecer una experiencia de vida inigualable, combinando diseño contemporáneo, espacios amplios y detalles cuidadosamente pensados. Ya sea que elijas la versión de 123m² o la de 150m², tu hogar será un reflejo de estilo, confort y exclusividad..

Descubre cómo nuestro modelo ELEGANCE puede convertirse en tu nuevo hogar. Contáctanos para más información y empieza a imaginar tu vida en un espacio diseñado para ti.