¡Bienvenido a Villa ARENAL!

Déjate envolver por la esencia del estilo mediterráneo y la sofisticación en esta magnífica vivienda de alta gama.

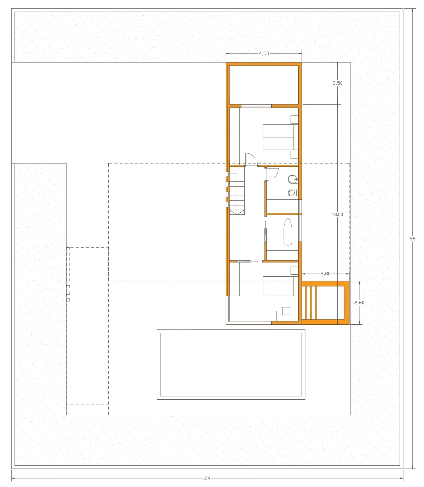
Villa Arenal cuenta con 4 amplios dormitorios y 3 amplios baños. El uso de materiales naturales y las amplias cristaleras llenan la casa de luz natural, creando un ambiente luminoso y acogedor en cada rincón.

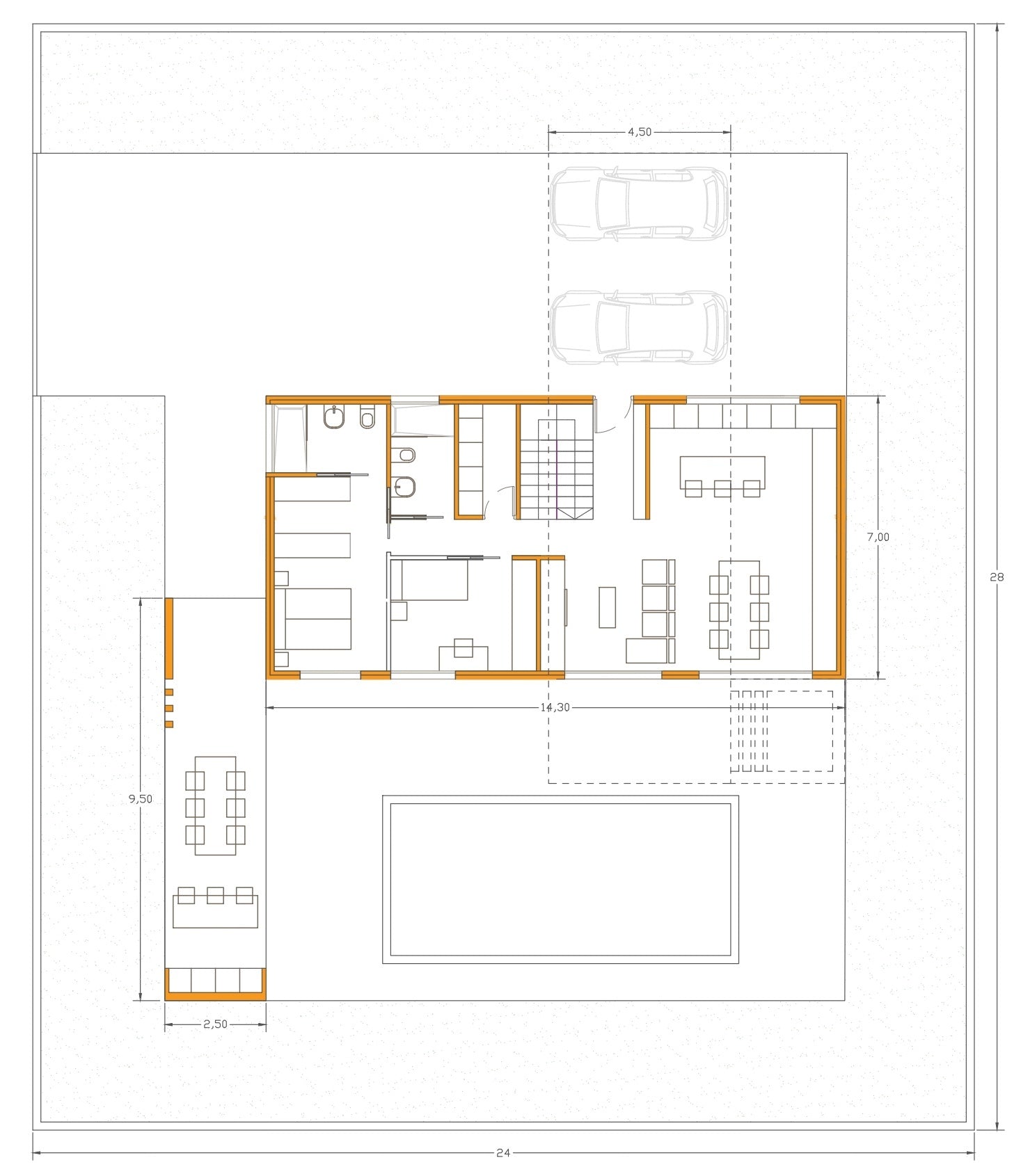
El núcleo de Villa Arenal es su cocina-comedor-salón, un espacio exquisitamente diseñado para reuniones familiares y cenas con amigos. También dispone de un lavadero y un garaje de hasta 150 m2. Villa Arenal cuenta con una impresionante piscina y una zona de barbacoa, perfectas para disfrutar del aire libre durante todo el año.

CARACTERÍSTICAS

  • 4 dormitorios
  • 3 baños
  • Cocina - comedor - salón
  • Lavadero
  • Garaje
  • Piscina
  • Barbacoa
1 de 4
  • Planta baja

  • Planta primera

¿Deseas saber más sobre esta exclusiva residencia?

Déjanos tus datos en el formulario y uno de nuestros agentes se comunicará contigo para brindarte toda la información que necesitas sobre esta espectacular propiedad.