¡Bienvenido a Villa PERLA!

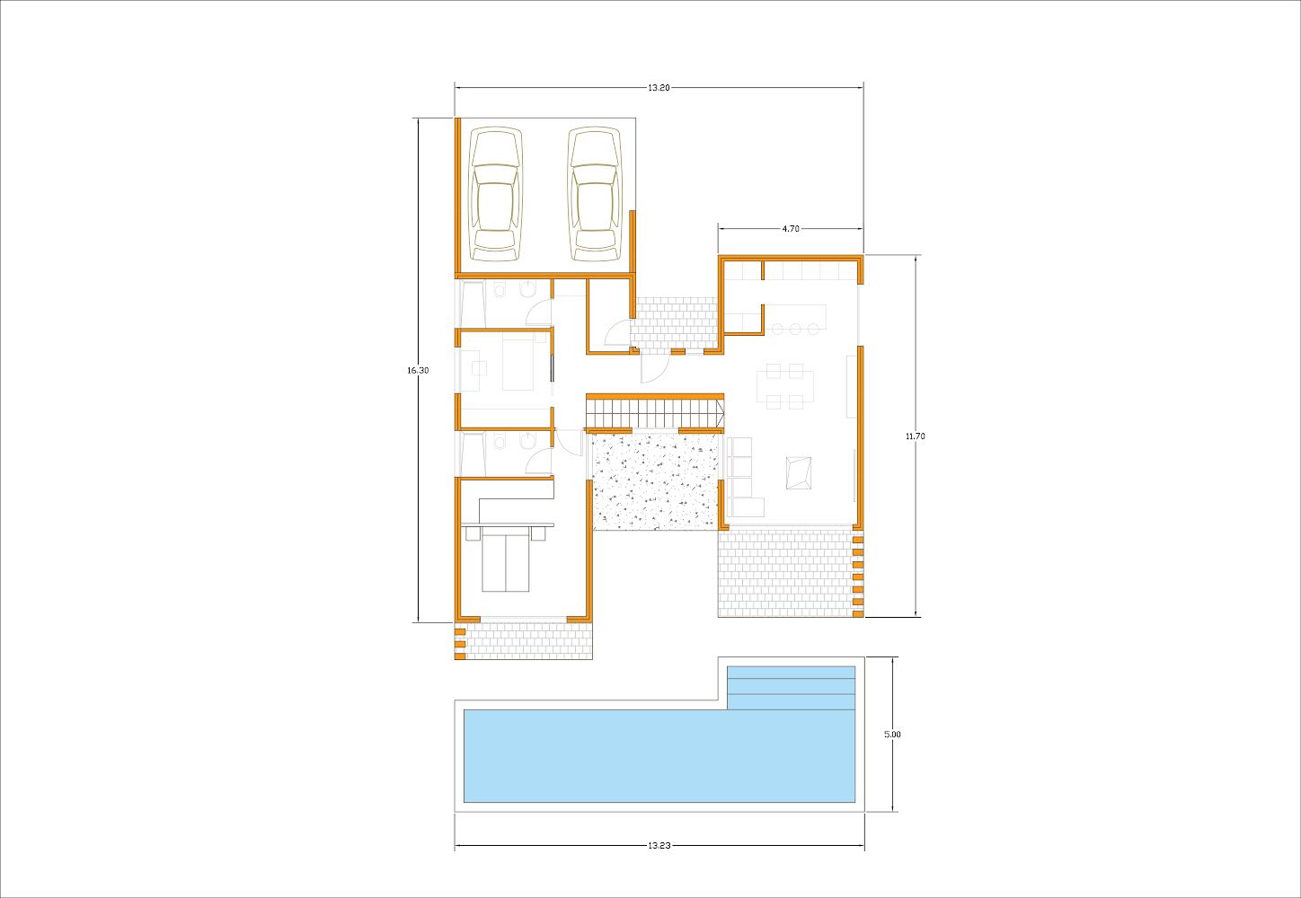
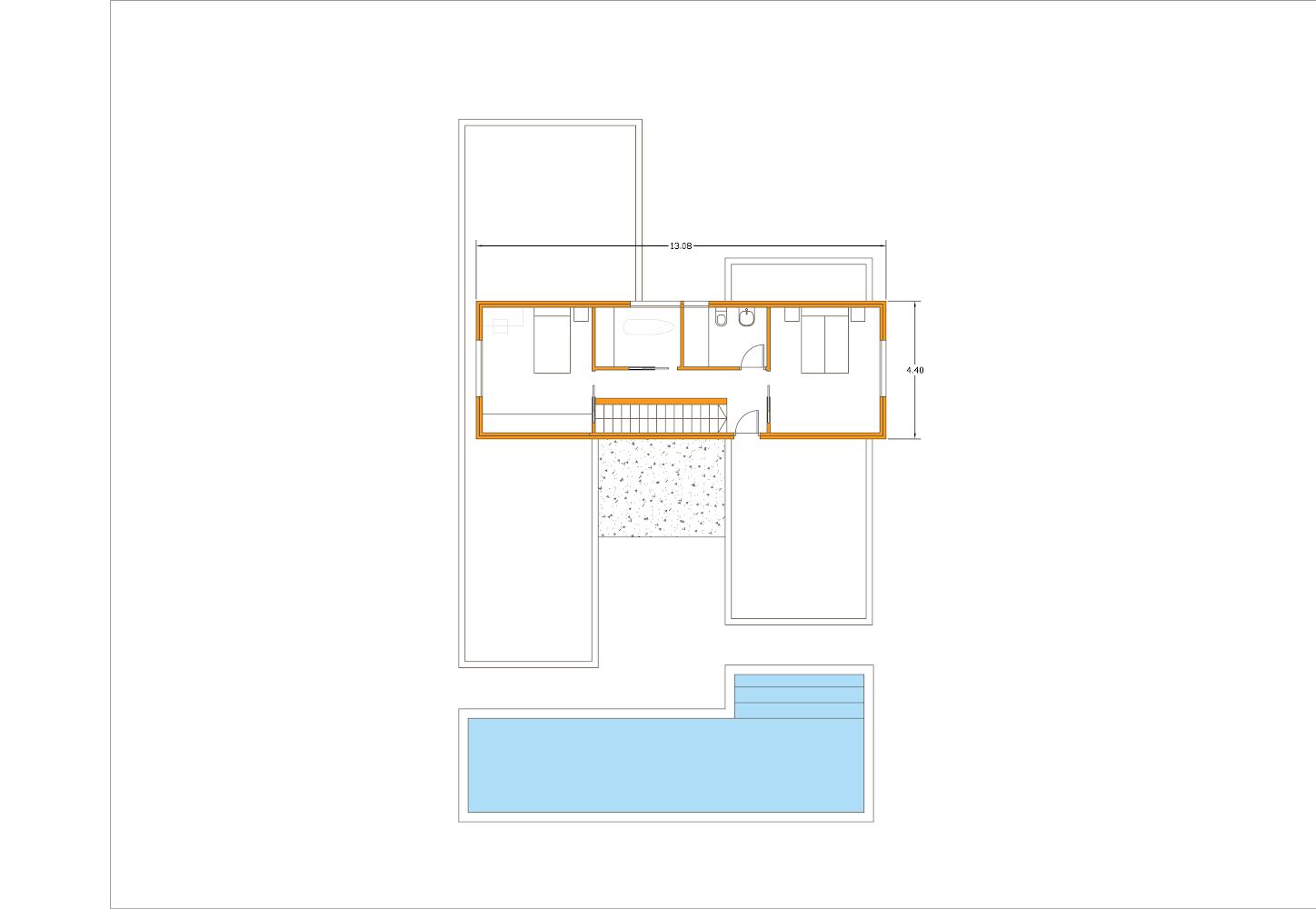
Descubre Villa Perla, consta de 168 m² distribuidos en dos plantas que combina modernidad, estilo mediterráneo y confort en cada rincón. Diseñada para quienes buscan un hogar lleno de luminosidad y calidez.

Distribución inteligente: Cada planta ha sido pensada para ofrecer un flujo de espacios óptimo, ideal para la vida familiar y social.

Amplios ventanales: Disfruta de una excelente iluminación natural en todas las áreas de la villa, conectando el interior con el exterior y ofreciendo vistas panorámicas únicas.

Materiales de alta calidad: Cada detalle ha sido cuidadosamente seleccionado para brindar una experiencia de vida única y duradera.

Villa Perla es más que una casa; es un espacio donde cada día puedes disfrutar de tranquilidad, privacidad y un estilo de vida elevado. Su diseño y detalles arquitectónicos convierten a esta villa en un verdadero refugio de serenidad y elegancia.

1 de 5

CARACTERÍSTICAS

  • 4 dormitorios
  • 3 baños
  • Cocina - comedor - salón
  • Lavadero
  • Garaje
  • Piscina

    • Vivienda - 168m2
    • Porches - 22m2
    • Garaje - 30m2
  • Planta baja

  • Planta primera

¿Deseas saber más sobre esta exclusiva residencia?

Déjanos tus datos en el formulario y uno de nuestros agentes se comunicará contigo para brindarte toda la información que necesitas sobre esta espectacular propiedad.